10 stk. på lager
Billigste fragt: GLS Pakkeshop 39,00 kr. (leveres tirsdag d. 19/5)
Se alle muligheder
Oplyste datoer gælder ved bestilling inden fredag 13.30
Billigste fragt: GLS Pakkeshop 39,00 kr. (leveres tirsdag d. 19/5)
Se alle muligheder
| Metode | Pris | Leveres |
|---|---|---|
| GLS Pakkeshop | 39,00 kr. | Tirsdag d. 19/5 |
| GLS Erhverv | 49,00 kr. | Tirsdag d. 19/5 |
| GLS Hjemmelevering | 59,00 kr. | Tirsdag d. 19/5 |
| Direkte levering | 149,00 kr. | Mandag d. 18/5 |
| Click&Collect i Svenstrup (9230) | 0,00 kr. | Mandag d. 18/5 |
Se alt fra mærket DeWalt
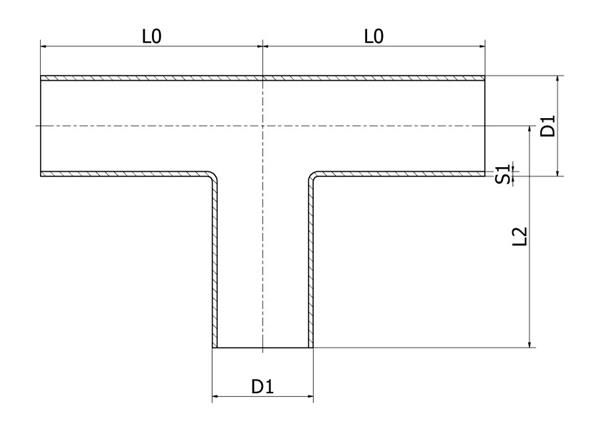
Levnedsmiddel T-stykke til fødevareindustrien. Syrefast stål (4404/316L) med en overfladefinhed på Ra 0,8 µm. Godkendt til drikkevand.
Læs mere…
- Varenr.:1817642
- Typenr.:DT46344992
pr. stk. | inkl. moms
522,00 kr.
Måske interessant?
Se alt fra mærket
Beskrivelse
Levnedsmiddel T-stykke
Dette levnedsmiddel T-stykke er designet til brug i fødevareindustrien og lignende applikationer, hvor der stilles høje krav til hygiejne og materialekvalitet. Det er fremstillet i syrefast stål og overholder standarderne for drikkevand.
Vigtige egenskaber:
- Materiale: Syrefast stål (4404/316L)
- Overfladefinhed: Ra 0,8 µm
- Certificering: 3.1 i henhold til EN10204
- Tolerance: DIN 11852
- Udvendig diameter: 104 mm
- Diameter B udvendig: 53 mm
- L2 mål: 95,5 mm
- Vægt: 0,93 kg
- Længde: 200 mm
- Tykkelse: 2 mm
- Tykkelse 2: 1,5 mm
- Udformning: reduceret
Anvendelse:
Denne fitting er velegnet til brug i drikkevandsinstallationer, da den rustfri stålkvalitet ligger indenfor standarden EN 1.4000 til EN 1.4999. Produktet er ikke omfattet af krav til godkendelse (GDV), men opfylder de nødvendige standarder for sikker anvendelse.
Bemærk:
Varen er tilgængelig fra et eksternt lager og kan leveres hurtigt ved bestilling inden kl. 11.45.
Specifikationer
-
Varenummer:1817642
-
EAN nummer:Nogle produkter sælges under flere forskellige type nr., EAN nr. osv.
-
Typenummer:DT46344992Nogle produkter sælges under flere forskellige type nr., EAN nr. osv.
-
Bemærkninger:Varen ligger på eksternt lager og kan leveres fra dag til dag ved bestilling inden kl.11.45.
-
Certifikat:3.1 i henhold til EN10204
-
Diameter B udvendig:53mm
-
Diameter udvendig:104mm
-
Finhed:Ra. 0,8 µm
-
L2 mål:95,5mm
-
Længde:200mm
-
Stålkvalitet:4404/316L
-
SVHC stof over 0,1%:Ingen
-
Tolerance:DIN 11852
-
Tykkelse:2mm
-
Tykkelse 2:1,5mm
-
Type:RTS
-
Udformning:reduceret
-
Vægt:0,93kg
-
Producent/forhandler:DeWalt











